Двокімнатна квартира у Житловий квартал "MERIDIAN" (Меридіан)

Двокімнатна квартира у Житловий квартал "MERIDIAN" (Меридіан)
ціна: 46000 $

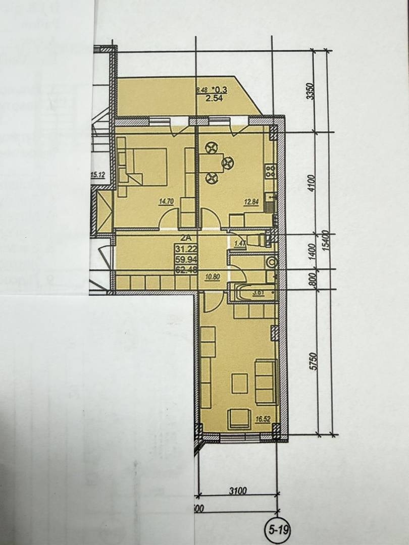
Характеристики
Комнат
2
Общая
62.5 м2
Жилая
31.22 м2
Кухня
12.84 м2
Этаж
5
Этажность
5

На мапі

Опис

У продажу простора 2-кімнатна квартира в сучасному ЖК «Меридіан» — комфорт та стиль для вашого життя Пропонується до продажу світла та функціональна 2-кімнатна квартира, розташована на зручному 5-му поверсі сучасного житлового комплексу «Меридіан». Квартира має продумане планування: окрема спальня, простора вітальня або кухня-вітальня, санвузол та балкон. Великі вікна наповнюють простір природним світлом, створюючи атмосферу затишку та гармонії. ЖК «Меридіан» — це сучасний житловий комплекс, який поєднує комфорт міського життя з тишею та близькістю до природи. Комплекс розташований поруч із морем та всією необхідною інфраструктурою: магазинами, школами, дитячими садками, медичними закладами та торговими центрами. На території комплексу: доглянуті двори з зонами відпочинку, дитячі та спортивні майданчики, комерційні приміщення на перших поверхах, багаторівневий паркінг для зручності мешканців. Будинок збудований за сучасною монолітно-каркасною технологією, що забезпечує надійність, довговічність та хорошу шумо- і теплоізоляцію . Ця квартира — ідеальний варіант як для комфортного проживання, так і для вигідної інвестиції.